DIE SUCHMASCHINE FÜR PROVISIONSFREIE IMMOBILIEN


Mit flatbee sparst Du die gesamte provision

Büro / Gewerbe - Wels - 4600 - 36 m2   premium-badge
Dies ist ein Flatbee Plus+ Inserat

Eigentum € 155000

Preis-Barometer: +127% teurer als ähnliche Immobilien in gleicher Lage

+127%

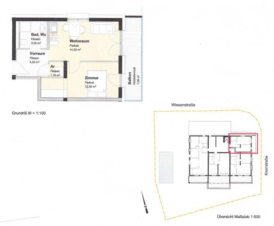
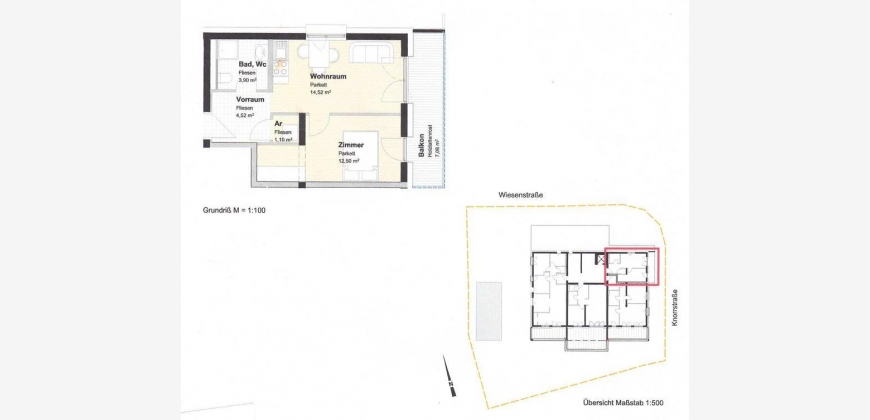
Perfekt aufgeteilte - Zwei Zimmer Wohnung in Wels!


Beschreibung

Interessante Single- oder Anlegerwohnung, zentral gelegen, mit großzügigem Balkon, Kellerabteil und überdachtem PKW-Abstellplatz im gemütlichen Zehn- Parteienwohnhaus.
Die Küche sowie der hochwertige begehbare Kleiderschrank verbleiben im Objekt.
Die optimale Lage unweit des Stadtzentrums und dem Naherholungsgebiet an der Traun, sprechen für sich!
Weiters sind wichtige Bildungseinrichtungen wie die Fachhochschule Wels, HTL Wels oder auch der Welser Hauptbahnhof fußläufig bequem erreichbar.
Provisionsfreie Immobilie durch Privatverkauf.
Sehr geringe Betriebskosten, aktuell:
BK EUR 179,48
RL EUR 39,15
Strom EUR 26,00
Energieausweis/Heizung
HWB (kWh/m²/Jahr): 26,6
HWB Energieklasse: B
fGEE: 0,66
fGEE Energieklasse: A+
Heizung: Fußbodenheizung, Fernwärme
Sonstiges:
*elektrische Raffstores
*kontrollierte Wohnraumlüftung
*verlässliche Hausverwaltung
*überdachter Autostellplatz
*top Infrastruktur
Für weitere Infos und Besichtigungen jederzeit Melden!

PROVISIONSFREI

Kontaktmöglichkeiten, Quellen und weitere Informationen sind nur mit Flatbee Plus+ Zugang verfügbar.

Berechnen Sie Ihre Kosten



Du möchtest umziehen und willst wissen wie viel dich der Umzug kosten wird?

Umziehen war noch nie so leicht, wie mit Österreichs einzigem direkten Umzugsvergleich mit Sofort-Ergebnis. Mach jetzt deinen kostenlosen und unverbindlichen Preisvergleich und vereinbare - wenn es soweit ist - einen Besichtigungstermin mit einer verlässlichen Umzugsfirma.

ZUM UMZUGS-VERGLEICH