DIE SUCHMASCHINE FÜR PROVISIONSFREIE IMMOBILIEN


Mit flatbee sparst Du die gesamte provision

Wohnung - Wien - 1100 - 102 m2   premium-badge
Dies ist ein Flatbee Plus+ Inserat

Gesamtmiete inkl. Betriebskosten € 846

Preis-Barometer: -51% günstiger als ähnliche Immobilien in gleicher Lage

-51%

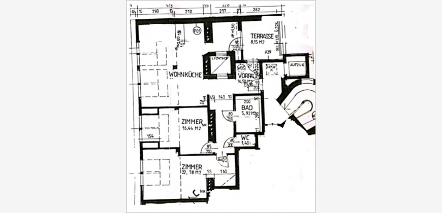
Klimatisierte, 102m2 Dachgeschoss-Wohnung mit 8m2 Terrasse zu vermieten - PROVISIONSFREI


Beschreibung

- Dachgeschoss im 5.Liftstock, sehr ruhig und hell;
- Uneinsehbare 8m2 Terrasse in den ruhigen Innenhof
- großes, lichtdurchflutetes Wohnzimmer mit ca.40 m2, klimatisiert
- Zwei große Schlafzimmer, klimatisiert
- Vorraum bzw. Gang
- Bad mit Maßmöbeln, Designerwaschbecken, Badewanne und Platz für Waschmaschine und Wäschetrockner
- Extra WC, Waschbecken mit Warmwasseranschluss
- Voll ausgestattete Küche mit Kühl- / Gefrierkombi und E-Herd
- Terrasse mit Wasseranschluss, zweiseitig begehbar
- Alle Dachflächenfenster mit außenliegenden Velux Markisetten beschattet und mit Innenrollos ausgestattet
- Kellerabteil vorhanden
- Gas-Etagenheizung mit moderner Therme
- Smarte Heizungssteuerung bzw. Klimaanlagensteuerung möglich
- Magenta-Internetanschlüsse in jedem Zimmer vorhanden
- Parkettböden
- Vermietung unbefristet
Kosten:
In den Betriebskosten nicht enthalten daher Strom und Gas, welche nach Verbrauch abgerechnet werden und vom Mieter selbst zu bezahlen sind.
Aktueller jährlicher Verbrauch ca. 2200 kWh Strom, 9000 kWh Heizung.
(ACHTUNG je nach Verbrauch kann dies natürlich mehr oder weniger sein!)
Ausstattung:
Es wurde 2020 eine Klimaanlage in allen Wohn- und Schlafräumen nachgerüstet. Alle Dachflächenfenster sind mit außenliegenden Velux Markisetten beschattet und mit Innenrollos ausgestattet. Die beiden Balkontüren besitzen ebenfalls innenliegenden Faltrollos.
Auf der Steinterrasse wurde 2019 ein Holzboden verlegt.
Lage:
*TOP* *ANBINDUNG* - in nur 10 Min am Stephansplatz
In der Umgebung befinden sich einige Tiefgaragenplätze. Eine E-Ladestation befindet sich 2 Gehminuten entfernt.
Die Favoritenstraße mit unzähligen Shops, Banken, Friseuren, etc. sowie der Viktor-Adler-Markt sind einen Katzensprung entfernt. Ebenso sind Kindergärten, Schulen, Kinderspielplätze und Ärzte in der Nachbarschaft. Der Hauptbahnhof kann auch bequem zu Fuß (10 Gehminuten) oder auch mit der U-Bahn erreicht werden.
Die Station U1 Keplerplatz ist in 2 min zu erreichen und die Straßenbahnlinien O, 6 und 11, sowie die Buslinie 14A befinden sich in unmittelbarer Nähe. Der Reumannplatz mit vielen Busverbindungen, dem Eissalon Tichy und dem Amalienbad ist in 5 Gehminuten zu erreichen.
Energieausweis liegt vor und wird bei Besichtigung zur Ansicht gebracht.
Anfragen von Marklern nicht erwünscht!

PROVISIONSFREI

Kontaktmöglichkeiten, Quellen und weitere Informationen sind nur mit Flatbee Plus+ Zugang verfügbar.

Berechnen Sie Ihre Kosten



Du möchtest umziehen und willst wissen wie viel dich der Umzug kosten wird?

Umziehen war noch nie so leicht, wie mit Österreichs einzigem direkten Umzugsvergleich mit Sofort-Ergebnis. Mach jetzt deinen kostenlosen und unverbindlichen Preisvergleich und vereinbare - wenn es soweit ist - einen Besichtigungstermin mit einer verlässlichen Umzugsfirma.

ZUM UMZUGS-VERGLEICH