DIE SUCHMASCHINE FÜR PROVISIONSFREIE IMMOBILIEN


Mit flatbee sparst Du die gesamte provision

Wohnung - Wien - 1040 - 66 m2   premium-badge
Dies ist ein Flatbee Plus+ Inserat

Gesamtmiete inkl. Betriebskosten € 767

Preis-Barometer: -32% günstiger als ähnliche Immobilien in gleicher Lage

-32%

Provisionsfreie moderne 3-Zimmer-Neubauwohnung (Fernwärme) - geeignet für Singles, WG oder Familien


Beschreibung

Objektbeschreibung
Privatvermietung - Vermietung ab sofort möglich
Das moderne Wohnhaus befindet sich im 4. Bezirk nahe der Wiedner Hauptstraße in bester Lage und verfügt über direkten Anschluss an öffentliche Verkehrsmittel - nur 8 Minuten zum Karlsplatz, 10 Minuten zum Hauptbahnhof.
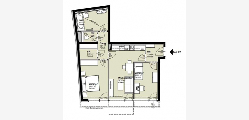
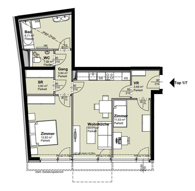
Aufgrund des exzellenten Grundrisses der zu vermietenden Wohnung mit zwei getrennt begehbaren Schlafzimmern sowie einer zentralen Wohnküche, ist diese insbesondere für eine Studenten-WG oder für junge Familien geeignet.
Das großzügig geschnittene Badezimmer ist mit einem großen Spiegel, Doppelwaschbecken mit Unterschrank und Badewanne ausgestattet. Das WC ist getrennt. Die beiden Schlafzimmer sind annähernd gleich groß. Ein geräumiger Abstellraum ist ebenso vorhanden. Die Wohnung wird per Fußbodenheizung über Fernwärme geheizt.
Die Küche verfügt über Backofen, Herd, Kühl- und Gefrierschrank sowie Geschirrspüler.
Die genaue Raumaufteilung findet sich im bereitgestellten Grundrissplan.
Der Wohnung ist ein Kellerabteil zugeordnet, welches in der Miete inkludiert ist.
Im hauseigenen Hof gibt es einen Kinder- und Jugendspielzimmer und einen Sandkasten.
ECKDATEN:
Neubau
-1. Liftstock
-66,39m² Wohnfläche
-3 Zimmer - 2 Schlafzimmer getrennt begehbar
-Bad mit Badewanne, 2 Waschbecken und Waschmaschinenanschluss
-WC getrennt
-Vorraum sowie Abstellraum
-Küche mit Backofen, Herd, Kühl- und Gefrierschrank sowie Geschirrspüler
-Kellerabteil zugehörig (2,4m²)
-Fahrradkeller vorhanden
-Befristung auf 5 Jahre mit Verlängerungsmöglichkeit
Lage
Für den täglichen Bedarf:
-SPAR GOURMET ca. 160m
-BILLA ca. 300m
-HOFER ca. 350m
-Bäckerei Grimm ca. 230 m
-FITINN ca. 170m

Öffentliche Anbindung:
3 Gehminuten zur Haltestelle "Johann-Strauß-Gasse":
- Straßenbahnlinien 1, 62, WLB
- Buslinie 13A
10 Gehminuten zur U-Bahn-Station "Taubstummengasse"
- U1
10 Gehminuten zum Hauptbahnhof

Energieausweis/Heizung
HWB (kWh/m²/Jahr): 21,3
HWB Energieklasse: A
fGEE: 0,76
fGEE Energieklasse: A
Heizung: Fernwärme

PROVISIONSFREI

Kontaktmöglichkeiten, Quellen und weitere Informationen sind nur mit Flatbee Plus+ Zugang verfügbar.

Berechnen Sie Ihre Kosten



Du möchtest umziehen und willst wissen wie viel dich der Umzug kosten wird?

Umziehen war noch nie so leicht, wie mit Österreichs einzigem direkten Umzugsvergleich mit Sofort-Ergebnis. Mach jetzt deinen kostenlosen und unverbindlichen Preisvergleich und vereinbare - wenn es soweit ist - einen Besichtigungstermin mit einer verlässlichen Umzugsfirma.

ZUM UMZUGS-VERGLEICH