DIE SUCHMASCHINE FÜR PROVISIONSFREIE IMMOBILIEN


Mit flatbee sparst Du die gesamte provision

Gemeindewohnung - Eggelsberg - 5142 - 53 m2   premium-badge
Dies ist ein Flatbee Plus+ Inserat

Gesamtmiete inkl. Betriebskosten € 310000

Preis-Barometer: +48642% teurer als ähnliche Immobilien in gleicher Lage

+48642%

Traumhafte Dachterassenwohnung mit 29 m² Terrasse - Provisionsfrei


Beschreibung

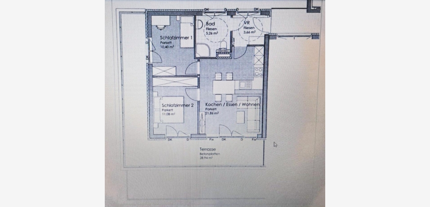
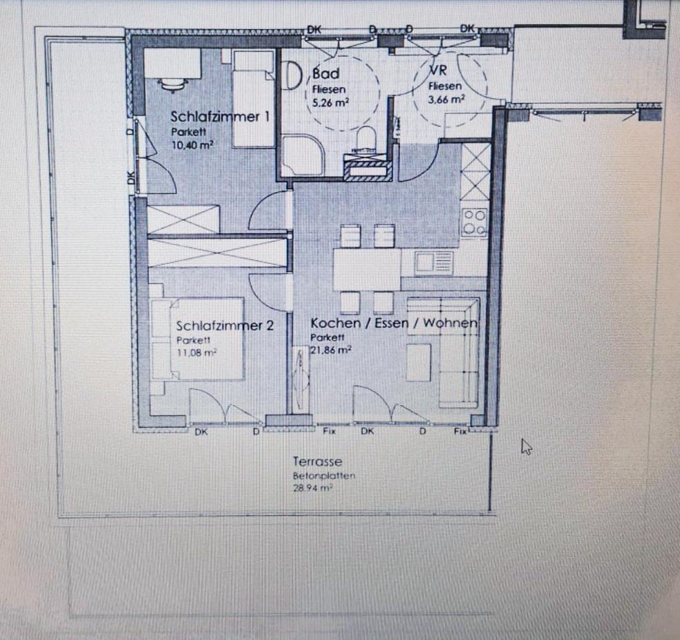
Diese moderne 2021 gebaute, helle 3-Zimmer-Dachgeschosswohnung bietet Ihnen höchsten Wohnkomfort auf 52,25 m² Wohnfläche – ergänzt durch eine sensationelle 29 m² große Dachterrasse mit traumhafter Aussicht.
Die Wohnung überzeugt durch einen durchdachten Grundriss:
‌-Einladender Vorraum
-‌Helles Badezimmer/WC mit Fenster und Dusche
-‌Offene Küche mit großzügigem Wohn-/Essbereich
-‌2 Schlafzimmer mit viel Tageslicht
Die Küche ist hochwertig eingerichtet und mit Markengeräten ausgestattet – perfekt für alle, die Stil und Funktion schätzen.
Ausstattung & Extras:
‌Fußbodenheizung in allen Räumen ‌Elegante Fliesen- und Parkettböden
‌Lift – barrierefreier Zugang zur Wohnung
‌Großes Kellerabteil
‌Wasch- & Trockenraum im Haus
‌Carport mit Stromanschluss und zweitem Außenstellplatz
Lage:
Die Wohnung liegt in ruhiger Lage von Eggelsberg (Gemeinde Guntertshausen) – umgeben von Natur und dennoch mit ausgezeichneter Infrastruktur:
Einkaufsmöglichkeiten in wenigen Gehminuten erreichbar
Sehr gute Anbindung nach Salzburg und Braunau – ideal für Pendler
Familienfreundliche Umgebung, Naherholung und Freizeitmöglichkeiten in unmittelbarer Nähe

PROVISIONSFREI

Kontaktmöglichkeiten, Quellen und weitere Informationen sind nur mit Flatbee Plus+ Zugang verfügbar.

Berechnen Sie Ihre Kosten



Du möchtest umziehen und willst wissen wie viel dich der Umzug kosten wird?

Umziehen war noch nie so leicht, wie mit Österreichs einzigem direkten Umzugsvergleich mit Sofort-Ergebnis. Mach jetzt deinen kostenlosen und unverbindlichen Preisvergleich und vereinbare - wenn es soweit ist - einen Besichtigungstermin mit einer verlässlichen Umzugsfirma.

ZUM UMZUGS-VERGLEICH