DIE SUCHMASCHINE FÜR PROVISIONSFREIE IMMOBILIEN


Mit flatbee sparst Du die gesamte provision

Wohnung - Hengsberg - 8411 - 65 m2   premium-badge
Dies ist ein Flatbee Plus+ Inserat

Gesamtmiete inkl. Betriebskosten € 990
Vor 7 Stunden inseriert

Preis-Barometer: +38% teurer als ähnliche Immobilien in gleicher Lage

+38%

Sonnige Erdgeschoßwohnung mit Terrasse & Grünfläche - ERSTBEZUG!


Beschreibung

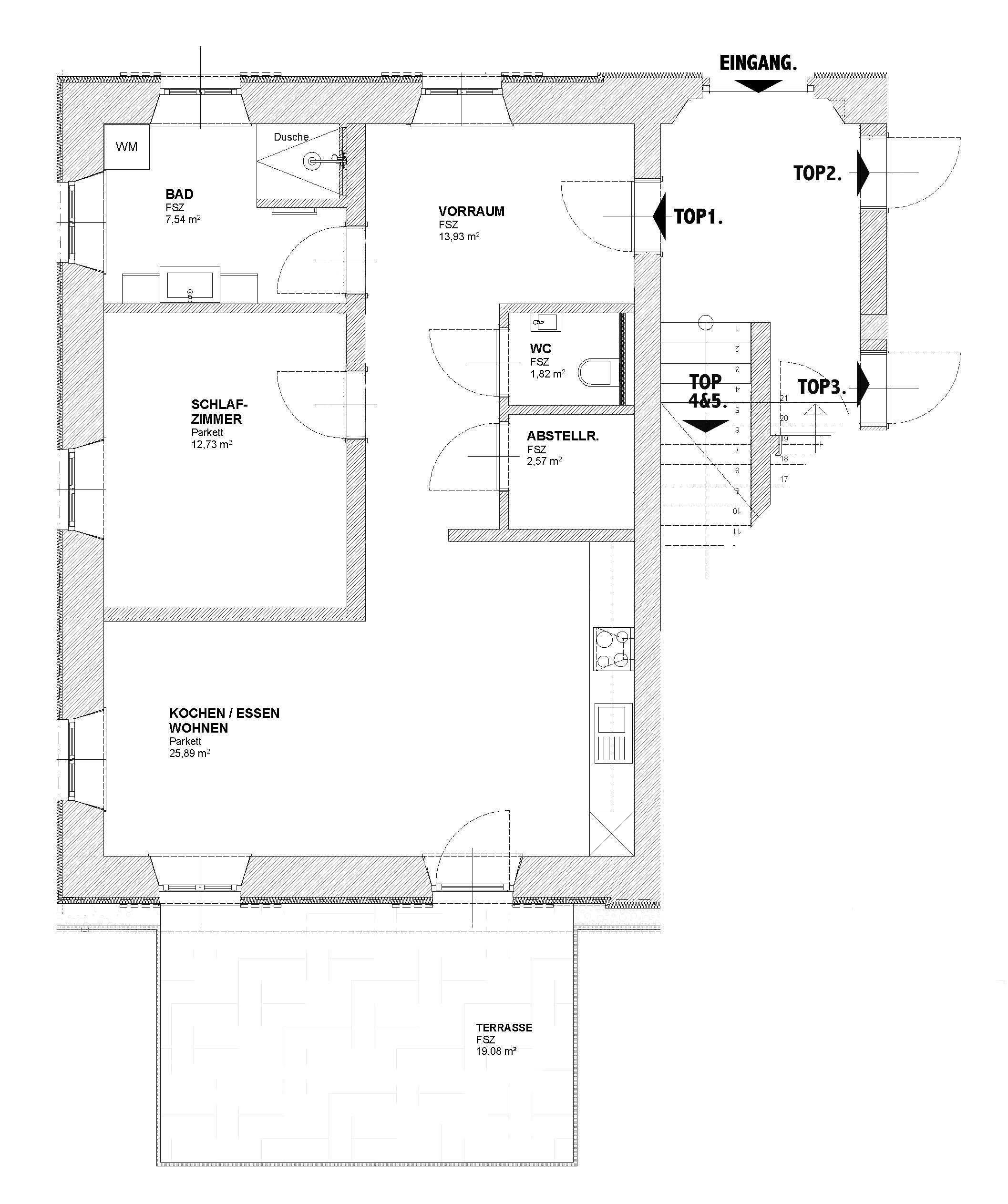
Diese exklusive Erdgeschoß-Wohnung (Top 1) im 2025 komplett umgebauten Born-Hof in Hengsberg vereint hochwertige Ausstattung und ein durchdachtes Wohnkonzept mit dem Charme eines über 250 Jahre alten Bauernhauses. Stil und Ruhe statt unpersönlicher Wohnblöcke!
Zimmereinteilung:
- 2-Zimmer-Wohnung im Erdgeschoß (Wohnung komplett niveaugleich, keine Stufen)
- 65,2 m² Wohnfläche
- 18 m² südseitige Terrasse und zusätzliche Grünfläche
- heller Wohn- & Essbereich mit großzügiger Einbauküche
- Badezimmer & WC getrennt
- eigener Abstellraum und riesiger Eingangsbereich (Vorraum)
- inklusive eigenem Abstellabteil im Nebengebäude (mit Stromanschluss)
- Garagenplatz zusätzlich anmietbar (€ 120 monatlich)
Ausstattung:
- hohe Räume und beste Isolierung durch solides Bestandsmauerwerk
- Wohnräume mit hochwertigem Vinylboden, Feinsteinzeug in Nass- und Allgemeinräumen
- Fußbodenheizung, angeschlossen an die Nahwärme Hengsberg (Warmwasser und Heizung werden verbrauchsabhängig abgerechnet)
- Einbauküche mit modernsten Geräten von Siemens
- 3-fach verglaste Kunststoff-Alu-Fenster mit Fensterläden
- Glasfaseranschluss vorhanden (A1)
- Gegensprechanlage mit Türöffner
- Rauchwarnmelder, gekennzeichnete Fluchtwege
- überdachter Eingangsbereich zur Gemeinschafts-Nutzung
Platz zum Atmen. Die Wohnung "Hengsberg-Blick" ist ideal für Singles oder Paare, die eine Verbindung zur Natur suchen und nach draußen wollen.
Lage
Der Born-Hof liegt in ruhiger Grünlage am Ortsrand der Wohngemeinde Hengsberg – im Herzen der Südsteiermark. Die Umgebung bietet eine hohe Lebensqualität mit viel Natur, gleichzeitig bestens angebunden:
- S-Bahnhof Hengsberg in wenigen Minuten erreichbar – direkte Verbindung mit der S6 (meist halbstündlich) nach Graz und Deutschlandsberg bzw. Bahnhof Weststeiermark
- Autobahn: A9-Halbanschlussstelle Hengsberg – in nur 30 Minuten nach Graz bzw. in 20 Minuten nach Leibnitz
Die Gemeinde Hengsberg am Fuße des Buchkogels ist als familienfreundliche Gemeinde ausgezeichnet und hat ein höchst aktives Vereinsleben.
- Einkaufen: Direktvermarkter, Bäckerei, Süßwaren in Hengsberg selbst, Supermärkte in Preding (6 Minuten), Wildon (7 Minuten) und Stangersdorf-Jöss (7 Minuten)
- Versorgung: praktische Ärztin mit Hausapotheke, Allgemeinmediziner, Kinderkrippe, Kindergarten (auch ganztags) und Volksschule im Ort, Mittelschule in Lebring-St. Margarethen
- Kultur, Sport & Vereine: regelmäßige Veranstaltungen im Hengistzentrum, Fußball-, Tennis-, Volleyball-, Eisstockschießvereine, Landjugend, Traktorclub, Wandergruppen, Reitclub, Volkstanzgruppen sowie zwei Freiwillige Feuerwehren
- Vielfältige Freizeitmöglichkeiten in der Umgebung
Schnell zusammengefasst
- Neubezug nach kompletten Umbau
- 2 Zimmer auf ca. 65 m² – durchdachter Grundriss & viel Tageslicht
- Energieeffizient und nachhaltig – dank modernster Haustechnik & Nahwärme-Anschluss
- Verfügbar ab sofort – Innenausbau komplett fertiggestellt
- Außenfläche inkl. Garage im Nebengebäude in Finalisierung
- Besichtigungen nach Terminvereinbarung jederzeit möglich
- keine Haustiere
Von Privat zu Privat
Bitte keine Makler:innen-Anfragen!

PROVISIONSFREI

Kontaktmöglichkeiten, Quellen und weitere Informationen sind nur mit Flatbee Plus+ Zugang verfügbar.

Berechnen Sie Ihre Kosten



Du möchtest umziehen und willst wissen wie viel dich der Umzug kosten wird?

Umziehen war noch nie so leicht, wie mit Österreichs einzigem direkten Umzugsvergleich mit Sofort-Ergebnis. Mach jetzt deinen kostenlosen und unverbindlichen Preisvergleich und vereinbare - wenn es soweit ist - einen Besichtigungstermin mit einer verlässlichen Umzugsfirma.

ZUM UMZUGS-VERGLEICH