DIE SUCHMASCHINE FÜR PROVISIONSFREIE IMMOBILIEN


Mit flatbee sparst Du die gesamte provision

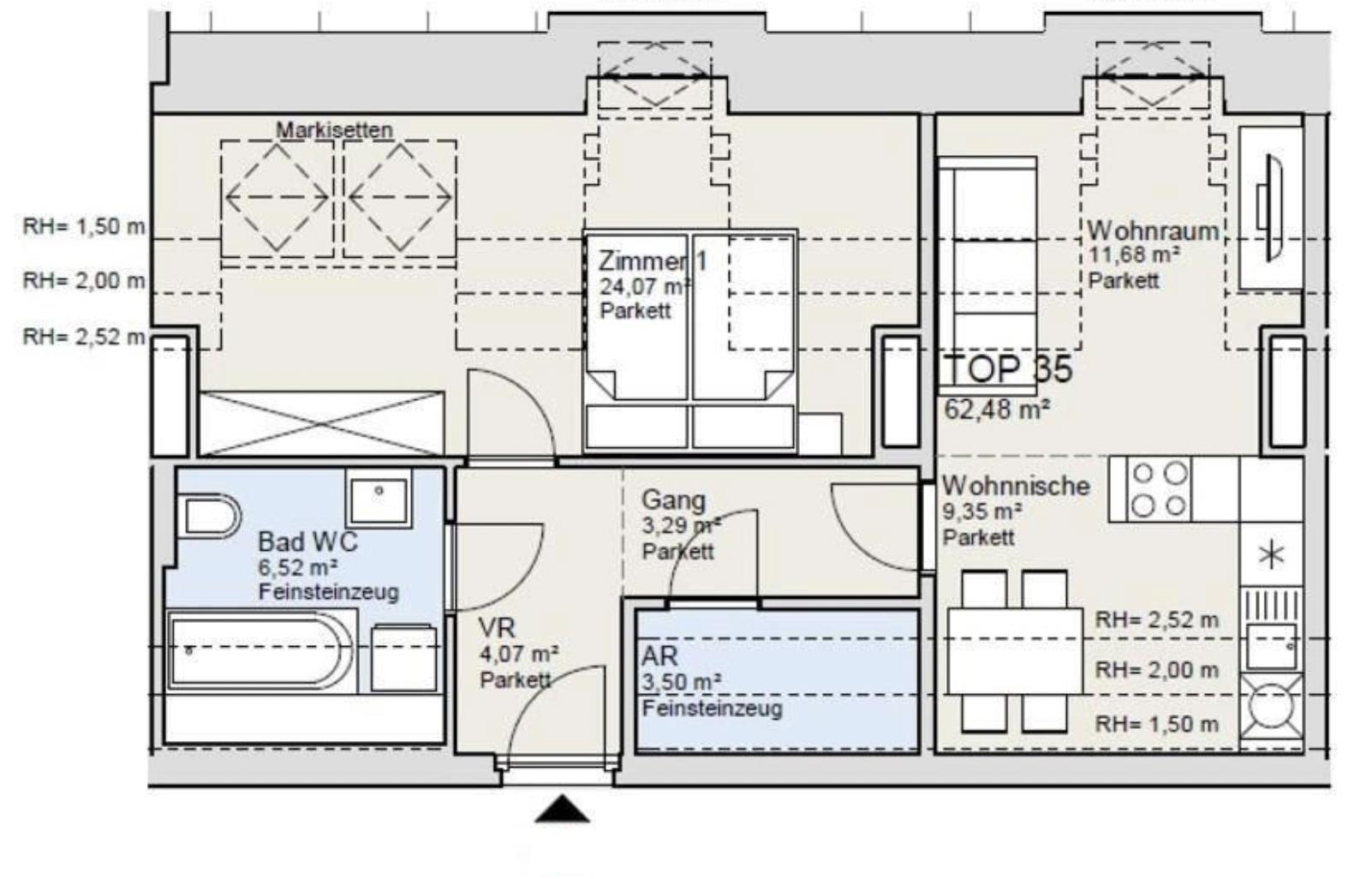
Wohnung - Wien - 1220 - 63 m2   premium-badge
Dies ist ein Flatbee Plus+ Inserat

Gesamtmiete inkl. Betriebskosten € 686

Preis-Barometer: -40% günstiger als ähnliche Immobilien in gleicher Lage

-40%

NACHMIETER GESUCHT: Ruhige 2-Zimmer-Wohnung nahe Donauzentrum Richtung Innenhof | U1 Kagraner Platz


Beschreibung

NACHMIETER GESUCHT: Ruhige 2-Zimmer-Wohnung nahe Donauzentrum Richtung Innenhof | U1 Kagraner Platz
Miete: €565
BK: €121
+Strom (ca. €49 pro Monat)
Kaution: 3BMM
Zimmer: 2
Anzahl Schlafzimmer: 1
Badezimmer: 1
Heizungsart: Zentralheizung, Fußbodenheizung
Personenaufzug: Ja
Einbauküche: Ja
Haustiere erlaubt: Ja
• hochwertige Einbauküche (Backofen, Herd, Kühl-Gefrierkombi, Spülmaschine)
• 3-fach Fensterisolierverglasung sorgt für eine außergewöhnlich ruhige Wohnung
• Fußbodenheizung
• Parkettboden und hochwertigen Fliesen
• Innenhof mit großzügiger Gemeinschaftsterrasse zur allgemeinen Nutzung
• Lift, Fahrradraum & Kinderwagenabstellraum
***Merkmale***
Fläche: 62,5 m²
Etage: 2
Baujahr: 2020
Wohnfläche: 62,5 m²
Verfügbar ab: ab sofort
Objektzustand: Neubau
Diese großzügige 2-Zimmer Wohnung bietet neben einem geräumigen Wohn-, und Schlafzimmer auch ein modernes Wannenbad. Das Schlafzimmer ist innenhofseitig ausgerichtet und bietet dadurch eine angenehme Nachtruhe. Außerdem ist hier genügend Platz, dass neben einem Doppelbett und einem Schrank auch ein Bürobereich untergebracht werden kann.
Die gesamte Liegenschaft wurde 2021 fertiggestellt und bietet besondere Extras wie eine große Gemeinschaftsterrasse, die zur allgemeinen Nutzung durch alle Bewohner zur Verfügung steht, einen separaten Fahrradabstellraum sowie ein gut brauchbares Kellerabteil.
Auf Wunsch kann ein Parkplatz in der hauseigenen Garage um € 85,00 monatlich ( inkl. USt. & Betriebskosten) angemietet werden.
***Energie***
HWB (kWh/m²a): 25.79
HWB-Klasse: B
fGEE: 0.71
fGEE-Klasse: A

PROVISIONSFREI

Kontaktmöglichkeiten, Quellen und weitere Informationen sind nur mit Flatbee Plus+ Zugang verfügbar.

Berechnen Sie Ihre Kosten



Du möchtest umziehen und willst wissen wie viel dich der Umzug kosten wird?

Umziehen war noch nie so leicht, wie mit Österreichs einzigem direkten Umzugsvergleich mit Sofort-Ergebnis. Mach jetzt deinen kostenlosen und unverbindlichen Preisvergleich und vereinbare - wenn es soweit ist - einen Besichtigungstermin mit einer verlässlichen Umzugsfirma.

ZUM UMZUGS-VERGLEICH