DIE SUCHMASCHINE FÜR PROVISIONSFREIE IMMOBILIEN


Mit flatbee sparst Du die gesamte provision

Wohnung - Wien - 1230 - 43 m2   premium-badge
Dies ist ein Flatbee Plus+ Inserat

Gesamtmiete inkl. Betriebskosten € 945

Preis-Barometer: +29% teurer als ähnliche Immobilien in gleicher Lage

+29%

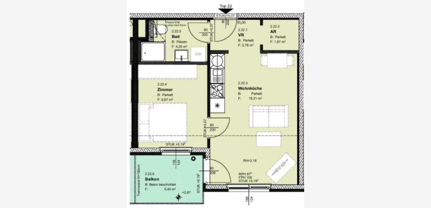
Moderne 2-Zimmer-Wohnung mit Balkon im 23., 1230 Wien


Beschreibung

Wohnungsanzeige: Moderne 2-Zimmer-Wohnung mit Balkon im 23. Bezirk, Wien
Größe: 43 m² (davon 5,4 m² Balkon)
Miete: 945 €
Kaution: 1.800 €
Stockwerk: 1. Stock (mit Aufzug)
Zimmer: 2 Zimmer, inklusive moderner Küche
Besonderheiten: Balkon, sehr gute Raumaufteilung, helle und ruhige Wohnung
Diese wunderschöne und moderne 2-Zimmer-Wohnung im 23. Bezirk von Wien bietet 43 m² Wohnfläche mit einer optimalen Raumaufteilung. Die Wohnung ist äußerst hell und ruhig, da alle Fenster sowie der Balkon zum Innenhof ausgerichtet sind – keine störenden Straßengeräusche.
Der Balkon mit einer Fläche von 5,4 m² lädt zum Entspannen ein und bietet einen ruhigen Blick ins Grüne. Die Wohnung befindet sich im 1. Stock und ist bequem über einen Aufzug erreichbar.
Eine moderne Küche ist bereits vorhanden, ebenso wie Möbel, die bei Interesse übernommen werden können (Ablöse verhandelbar).
Die Lage ist perfekt für alle, die eine ruhige Umgebung schätzen, aber dennoch eine gute Anbindung an die Stadt wünschen. Die S-Bahn-Station ist in nur 10 Minuten zu Fuß erreichbar, und die nächste Bushaltestelle (Buslinien 60A und 66A) befindet sich nur 3 Minuten entfernt. Der nächste Supermarkt ist ebenfalls in 5 Minuten zu Fuß erreichbar.
Fakten im Überblick:
Wohnfläche: 43 m² (inkl. 5,4 m² Balkon)
Stockwerk: 1. Stock (mit Aufzug)
Miete: 945 € pro Monat
Kaution: 1.800 €
Ablöse: 4.000 € (für Küche, Badezimmer, Fernseher, Sofa und div. Möbel, verhandelbar)
Balkon: zum ruhigen Innenhof hin ausgerichtet
Küche: Moderne Einbauküche mit Geschirrspüler, Kühlschrank, Herd und Ofen vorhanden
Lage: 23. Bezirk, Wien, ruhige Wohngegend
Verkehrsanbindung: 10 Minuten zu Fuß zur S-Bahn, 3 Minuten zur Bushaltestelle (60A, 66A)
Infrastruktur: Supermarkt in 5 Minuten zu Fuß erreichbar
Diese Wohnung ist ideal für Singles oder Paare, die modernes Wohnen in einer ruhigen und dennoch gut angebundenen Lage suchen.
Gerne können Sie mich jederzeit kontaktieren, um einen Besichtigungstermin zu vereinbaren.

PROVISIONSFREI

Kontaktmöglichkeiten, Quellen und weitere Informationen sind nur mit Flatbee Plus+ Zugang verfügbar.

Berechnen Sie Ihre Kosten



Du möchtest umziehen und willst wissen wie viel dich der Umzug kosten wird?

Umziehen war noch nie so leicht, wie mit Österreichs einzigem direkten Umzugsvergleich mit Sofort-Ergebnis. Mach jetzt deinen kostenlosen und unverbindlichen Preisvergleich und vereinbare - wenn es soweit ist - einen Besichtigungstermin mit einer verlässlichen Umzugsfirma.

ZUM UMZUGS-VERGLEICH