DIE SUCHMASCHINE FÜR PROVISIONSFREIE IMMOBILIEN


Mit flatbee sparst Du die gesamte provision

Büro / Gewerbe - Leibnitz - 8430 - 170 m2   premium-badge
Dies ist ein Flatbee Plus+ Inserat

Gesamtmiete inkl. Betriebskosten € 12
Vor 18 Stunden inseriert

Preis-Barometer: -99% günstiger als ähnliche Immobilien in gleicher Lage

-99%

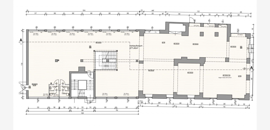
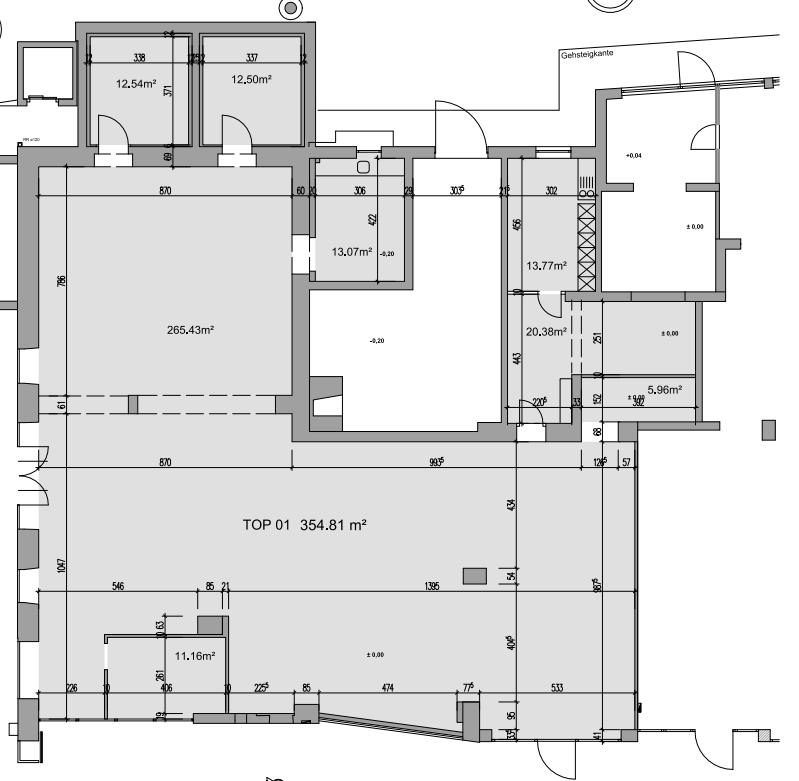
Geschäftsflächen im Kauf-Park Leibnitz in bester Lage


Beschreibung

barrierefreie Geschäftsfläche im Kaufpark Leibnitz zu vermieten!
Bestandsobjekt Leibnitz, Nahversorgungszentrum
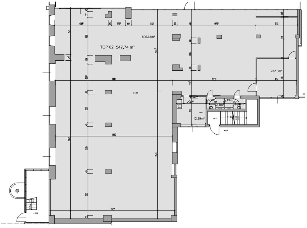
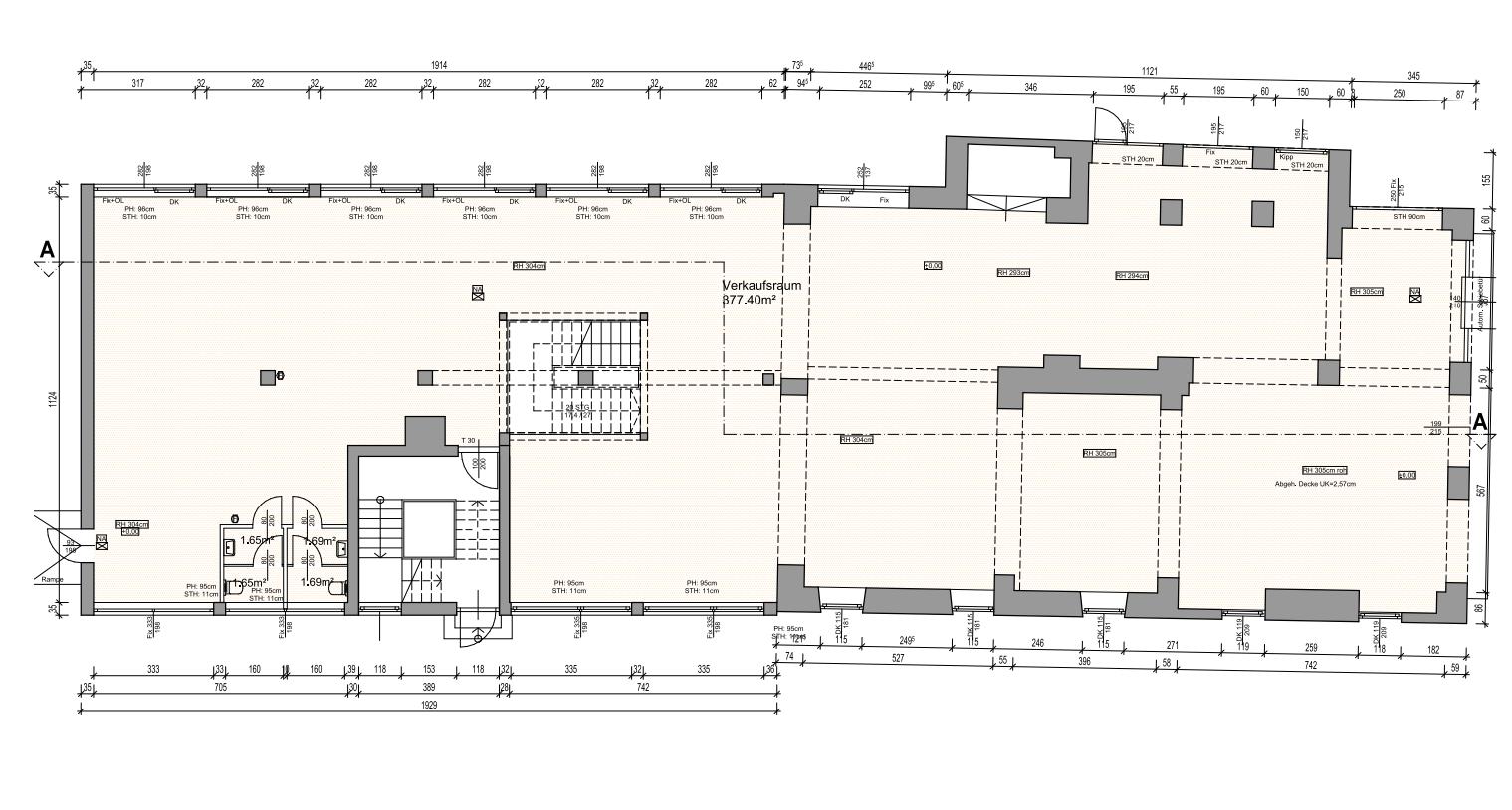
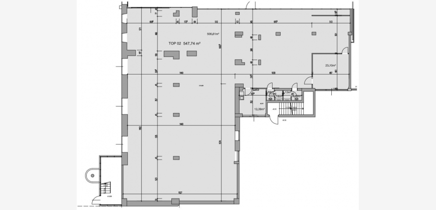
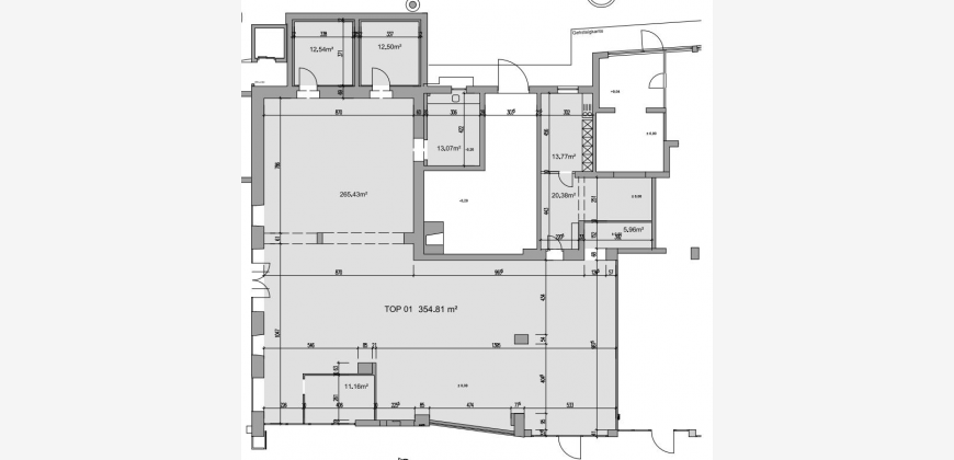
Nutzflächen von ca. 170 m² bis 550 m²
Top 20 im Erdgeschoss
1A-Standort Zentrum, gute Sichtlage
gute Frequenz und Infrastruktur
barrierefreier Eingang
großer Verkaufsraum mit Auslage
Objektzustand Edelrohbau
Innenausbau durch Mieter möglich
eigene Kundenparkplätze für das Geschäft direkt vor dem Eingang
über 300 Kundenparkplätze stehen zur Verfügung
provisionsfrei
Im Kauf-Park sind namhafte Geschäfte, ein Café, Restaurant und ein Fitnessstudio vor Ort:
Penny Markt
11Teamsports
Café Sowieso
Trattoria da Checo
CleverFit Studio
Leoni´s Imbiss

PROVISIONSFREI

Kontaktmöglichkeiten, Quellen und weitere Informationen sind nur mit Flatbee Plus+ Zugang verfügbar.

Berechnen Sie Ihre Kosten



Du möchtest umziehen und willst wissen wie viel dich der Umzug kosten wird?

Umziehen war noch nie so leicht, wie mit Österreichs einzigem direkten Umzugsvergleich mit Sofort-Ergebnis. Mach jetzt deinen kostenlosen und unverbindlichen Preisvergleich und vereinbare - wenn es soweit ist - einen Besichtigungstermin mit einer verlässlichen Umzugsfirma.

ZUM UMZUGS-VERGLEICH