DIE SUCHMASCHINE FÜR PROVISIONSFREIE IMMOBILIEN


Mit flatbee sparst Du die gesamte provision

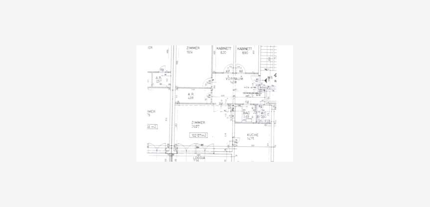
Wohnung - 1220 Wien, Saikogasse - 102 m2  

Eigentum € 480000

von Flatbee vor 2 Tagen gefunden

Preis-Barometer: -21% günstiger als ähnliche Immobilien in gleicher Lage

-21%

premium-badge
Dies ist ein Flatbee Plus+ Inserat

Eigentumswohnung mit Loggia Nähe Kagraner Platz, Perfekt für Familien


Beschreibung

Großzügiges Wohnglück mit Loggia in ruhiger Donaustädter Bestlage - Diese ca. 102 m² große Eigentumswohnung im 22. Bezirk bietet Platz für die ganze Familie und überzeugt durch einen durchdachten Grundriss sowie eine sonnige Süd-Loggia.
Die Highlights der Wohnung:
Platzwunder: 4 Zimmer verteilt auf ca. 102 m² Wohnfläche plus gemütliche ca. 7 m² Süd-Loggia mit Markise – Sonne von vormittags bis zum Untergang.
Raumaufteilung:
Großes Wohnzimmer (ca. 26 m²), ein geräumiges Schlafzimmer (ca. 19 m²) sowie zwei weitere Kabinette, die sich ideal als Kinderzimmer oder Home-Office eignen.
Moderne Küche:
Eine voll ausgestattete, ca. 14,7 m² große Wohnküche mit hochwertigen Geräten (Induktionsherd, Geschirrspüler, Backrohr) lädt zum Kochen ein.
Top-Zustand:
Das Gebäude wurde vor ca. 15 Jahren thermisch saniert (Dämmung & Dach). Die Wohnung selbst verfügt über eine Klimaanlage im Wohnzimmer und Laminat- bzw. Fliesenböden.
Extras:
Ein großzügiges, privates Kellerabteil (6,5 m²), ein Fahrradraum sowie eine Waschküche im Haus sind vorhanden.
Lage & Lebensqualität:
Die Wohnung liegt in einer angenehmen Ruhelage ohne Durchzugsverkehr. Dennoch ist alles Wichtige in Kürze erreichbar:
- Natur & Freizeit: Waldspielplatz Thonetgasse, Gusti-Wolf-Park und die Alte Donau (10 Min.) befinden sich in unmittelbarer Nähe.
- Infrastruktur: Nur 8 Geh-Minuten zur U-Bahnstation Kagraner Platz. Apotheke, Supermärkte, Kindergärten und Schulen sind fußläufig erreichbar.
- Die Wohnung befindet sich im 2. Stock (mit Lift) eines gepflegten Hauses mit nur 8 Parteien auf der Stiege.
Verkauf von Privat – Bitte keine Makleranfragen!

PROVISIONSFREI

Kontaktmöglichkeiten, Quellen und weitere Informationen sind nur mit Flatbee Plus+ Zugang verfügbar.

Berechnen Sie Ihre Kosten



Du möchtest umziehen und willst wissen wie viel dich der Umzug kosten wird?

Umziehen war noch nie so leicht, wie mit Österreichs einzigem direkten Umzugsvergleich mit Sofort-Ergebnis. Mach jetzt deinen kostenlosen und unverbindlichen Preisvergleich und vereinbare - wenn es soweit ist - einen Besichtigungstermin mit einer verlässlichen Umzugsfirma.

ZUM UMZUGS-VERGLEICH
ˀ